У нее пожалуй лишь одни недочеты - грязь, лужи и, конечно, умершие деревья...
Подпишитесь на рассылку и получайте свежие новости и акции нашего магазина.
Интернет-магазин строительного оборудования, отделочных и строительных материалов.
Подпишитесь на рассылку и получайте свежие новости и акции нашего магазина.
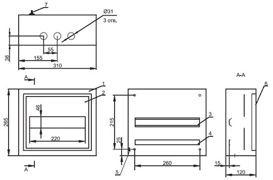
Корпус щита распределения IEK ЩРн-12з-1 36 УХЛ3 MKM14-N-12-31-Z
Корпус щита распределения IEK ЩРн-12з-1 36 УХЛ3 MKM14-N-12-31-Z предназначен для сборки распределительных электрощитов с использованием модульной аппаратуры, для ввода и распределения электроэнергии, а также для защиты сетей напряжением 230/400 В от токов перегрузки и короткого замыкания.
Корпус оснащен защитной оперативной панелью, исключающей поражение током в ходе эксплуатации готового изделия.
Для крепления шин N и PE предусмотрена оцинкованная рейка.

| Прочие | ||
| Производитель | IEK | |
| Вес брутто | 3,31 кг | |
| Высота | 265 мм | |
| Глубина | 120 мм | |
| Количество модулей | 12 | |
| Материал корпуса | Сталь | |
| Номинальный ток | 100 А | |
| Способ монтажа | Навесной | |
| Степень защиты | IP31 | |
| Тип | Корпус | |
| Цвет | Серый | |
| Ширина | 310 мм | |