У нее пожалуй лишь одни недочеты - грязь, лужи и, конечно, умершие деревья...
Подпишитесь на рассылку и получайте свежие новости и акции нашего магазина.
Интернет-магазин строительного оборудования, отделочных и строительных материалов.
Подпишитесь на рассылку и получайте свежие новости и акции нашего магазина.
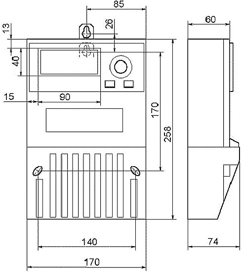
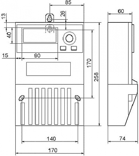
Счетчики Меркурий серии 230 AМ предназначены для коммерческого учета активной электроэнергии в одном направлении в трёх- или четырёхпроводной сети переменного тока.

Счетчик Меркурий 230 AM-03 предназначен для измерения электрической активной энергии (A+) в трехфазных трехпроводных или четырехпроводных цепях переменного тока, с прямым подключением по напряжению итрансформаторным по току к цепям генератора и нагрузки. Работает при номинальном напряжении 3x230/400 В и силе тока 5 - 7,5 А. Соответствует классу точности 0,5S, имеет импульсный выход.
Счетчики этого типа измеряют энергию с нарастающим итогом независимо от ее направления.
В счетчиках Меркурий 230 AM-03 импульсный выход основного передающего устройства имеет два режима работы - режим телеметрии и режим поверки. Переключение из режима телеметрии в режим поверки осуществляется путем подачи на выводы 17(-) и 20(+) постоянного напряжения (12±2) В.

ОУ счетчиков содержит пять черных барабанов, которые отображают целые значения потребленной электроэнергии в кВт·ч, и один красный барабан после запятой, который отображает десятые доли кВт·ч.
230 - серия счетчика
А - измерение активной энергии
M - электромеханическое отсчётное устройство
| Класс точности при измерении активной энергии | 0,5S |
| Номинальное напряжение, В | 3*230/400 |
| Номинальный(макс) ток, А | 5(7.5) |
| - при Iном=5А | 150 |
| Стартовый ток (чувствительность), А | 0.005 |
| Активная / полная потребляемая мощность каждой параллельной цепью счетчика, Вт/ВА не более | 1.0/7.5 |
| Полная мощность, потребляемая цепью тока не более, В*А | 1.0 |
| Диапазон рабочих температур, °С | -40...+55 |
| Межповерочный интервал,лет | 10 |
| Масса, кг не более | не более 1,5 |
| Габариты, мм | 258/170/74 |
| Гарантия производителя, лет | 3 |
Компания «НПК «Инкотекс» специализируется на разработке и производстве электронных приборов учета энергоресурсов и автоматизированной системы коммерческого учета под торговой маркой «Меркурий», основанной на PLC и GSM технологии.

При разработке счётчиков электроэнергии компания ориентируется на использование передовых технологий и электронных компонентов, которые приобретаются только у ведущих мировых произво- дителей. Для поверхностного монтажа используются высокоскоростные линии SMT–монтажа, таких производителей как Juki, Fuji, Universal.
Высокий класс точности, приборов учёта «Меркурий», подкреплён высокой степенью защиты от фальсификации показаний. Для этого используются электронные пломбы, многоуровневая система
паролей, что в сочетании с другими решениями, полностью исключает несанкционированный доступ к счётчику.
| Прочие | ||
| Производитель | Инкотекс Меркурий | |
| Температурный диапазон | от -40 до 55 ° C | |
| Частота | 50 Гц | |
| Тип счетчика | Электронный | |
| Тип крепления | Панель | |
| Вес брутто | 0,3 кг | |
| Тип | Счетчик электроэнергии | |
| Страна производства | Россия | |
| Номинальный ток | 5 А | |
| Количество фаз | 3 | |
| Количество тарифов | Однотарифный | |
| Класс точности | 0,5S | |
| Гарантия | 3 года | |
| Габариты | 258х170х74 мм | |
| Максимальный ток | 7,5 А | |
| Межповерочный интервал | 10 лет | |
| Номинальное линейное напряжение | 400 В | |
| Тип учитываемой электроэнергии | Активный | |